La petite table
![]()
![]()
![]()
Nos amis italiens de La Petite Table ont ouvert leur premier restaurant dans le Marais. Fort de leur expérience en catering qui a fait leur renommée, ils ont naturellement eu envie d'avoir un lieu à eux qui reflète leur identité et leur savoir-faire.
Et c'est à nous qu'ils ont pensé pour designer cette nouvelle adresse.
![]()
![]()
![]()
![]()
Un petit air d'Italie
Simple, épuré, lumineux, mais chaleureux avec des matériaux de qualité. Un véritable hommage à la gastronomie italienne et à la cuisine pratiquée par la Petite Table en somme. Voici la ligne directrice qui a guidé nos choix.
![]()
![]()
![]()
![]()
![]()
![]()
![]()
![]()
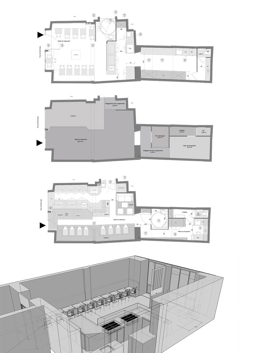
Afin de respecter les normes de sécurité en vigueur et de suivre le bon déroulé du chantier, nous avons travaillé avec l'architecte Olivia Clor.
Logo & identité visuelle
2 ans avant de réfléchir au design du restaurant, nous avons conçu le logo et l'identité visuelle. L'idée était de refléter l'aspect artisanal du métier de traiteur en apportant un touche haut de gamme, en phase avec la clientèle principalement issu de la mode et du luxe avec qui la Petite Table collabore.
![]()
![]()
![]()
![]()
![]()
![]()
![]()
![]()
![]()
![]()




















